£450,000
For enquiries call 01732 363633
3 bedroom semi-detached house in Chatham
3 2 2For enquiries call 01732 363633
Share with friends
For enquiries call 01732 363633
PLOT 10 THE BARLEYMOW!
This superb 3 bedroom family home is truly a must see. Situated in a quiet residential area, this home has been carefully designed with a modern layout and high specification throughout. Proudly built by the local housebuilder Roadhouse New Homes, this home boasts the highest possible energy efficiency level, making this property environmentally and financially friendly. Plus there is also the opportunity for personalisation!*
*subject to build stage. T's & C's apply.
All of the new homes at Vixen Place are A rated for energy, achieving a spectacular 96/100 EPC. This prestigious A rating was awarded to less than 3% of all new build houses constructed in the UK last year! Roadhouse New Homes are proudly the first housebuilder in Kent to exclusively construct A rated developments. With an unrivalled standard specification and build quality, Vixen Place offers you the best value for money.
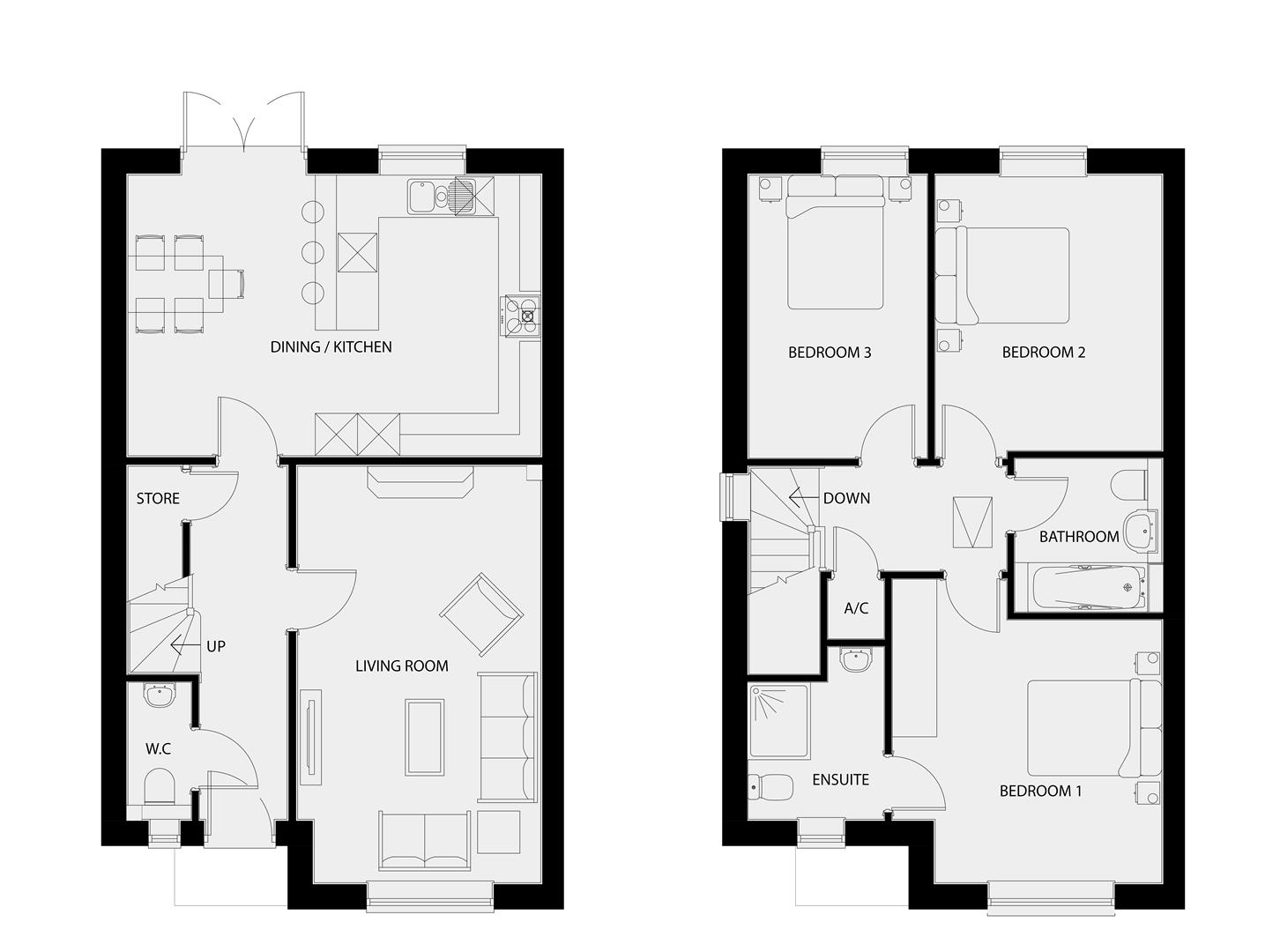
Plot 10 is spacious 3 bedroom semi-detached family home. Designed for the demands of modern life, the kitchen/dining room boasts an impressive high quality standard specification, plus numerous integrated kitchen units to maximise storage space. With double doors leading out from the dining area to the property width patio and turfed rear garden, plus a substantial separate living room, this property offers the ideal venue for hosting family and friends, Upstairs, the property has 3 large double sized bedrooms, one with en-suite, and a family bathroom. External features also include a turfed front garden and private block paved driveway with EV charger.
With an exceptional specification as standard, Vixen Place is an outstanding development of attractive 3 & 4 bedroom family homes. Designed in the traditional Kentish vernacular, every home blends timeless brick and tile hung exteriors, with environmentally friendly low-cost living, one of the many benefits of buying a brand-new home.
These finely crafted family homes have the highest possible energy performance A rating, and we are told this is currently the only new homes development in Medway to achieve this accolade. Solar panels and electric vehicle charging points to every property enable you to easily achieve an environmentally friendly, greener lifestyle.
The thoughtfully planned accommodation and spacious layout of each house type, creates the perfect environment to meet the demands of the modern family. At the heart of the home, these well-designed kitchens with fully integrated appliances, offer options to personalise to your taste.
Vixen Place offers convenient access to both the M2 and M20 motorway networks it is close to Maidstone (9 miles), Bluewater (17 miles), Canterbury (29 miles) and not forgetting the popular coastal town of Whitstable, which is less than 30 miles away. With regular rail services to London Bridge (36 minutes), Cannon Street and London Victoria (42 minutes), the development is ideally placed for commuters, with Rochester station less than 4 miles away. For local bus services, the nearest stop is just a 5-minute walk
Vixen Place benefits from a range of local amenities, with Morrisons close by and Hempstead Valley Shopping Centre at under 4 miles, with Sainsbury’s, Medway’s largest M&S, a gym, a selection of restaurants and coffee shops, there’s something for everyone. Not forgetting the historic town of Rochester with its own exciting range of independent stores, boutiques, restaurants and bars.
There is also a diverse array of leisure actives in the locality, including the Lords Wood Leisure Centre and Chatham Snowsport Centre’s artificial ski slope close by. Perfect for a family day out, Capstone Farm Country Park is only 2 miles away and offers a superb 144 hectare green space with a fishing lake, children’s playground, café and woodland.
There is a plethora of local golfclubs within a 15-mile radius of Vixen Place, including Sittingbourne & Milton Regis, Rochester & Cobham Park Golf Club, Mid Kent Golf Club and West Malling Golf Club.
Just waiting to be enjoyed are any number of historic landmarks and events, from Rochester and Upnor Castles, to Rochester’s vibrant Summer and Winter Dickens Festivals and not forgetting the impressive collection of historic war ships at Chatham Dockyard.
There are several local medical practices within a 3-mile radius of Vixen Place. Furthermore, Medway Maritime Hospital is only 2.6 miles from this new development.
There are several good and outstanding schools and nurseries in the local area, including Kingfisher Primary School, St Thomas More’s Catholic Primary School and Chatham Grammar school. For those investigating further education, the Medway Towns benefit from several universities and colleges including the University of the Creative Arts and the Medway Campus of the University of Kent.
Internal features and finishes include
o Storage cupboards to all floors with internal light and double electric socket
o All woodwork to be a satin white finish
o White emulsion to walls
o White painted staircase with oak handrail
o Internal oak finished vertical five panel textured
o Doors with chrome ironmongery
o Choice of LVT or carpet to all ground floor rooms subject to build stage
o Cat 6 cabling to every room
The ground floor is heated by underfloor heating.
A spacious entrance hall with storage cupboard and bespoke white painted staircase. Leading off from the hall is the living room, kitchen/dining room and W.C.
A spacious front aspect room with Cat 6 Data Cables, TV point and USB socket.
Key features include Ideal Standard sanitaryware, Ceraplan taps, downlighters and heated chrome towel rail.
Perfect for entertaining, the high quality Benchmarx Sherwood Grey kitchen consists of oak laminate worktops (with the option to upgrade to quartz), 5 ring gas on glass hob with wok burner, integrated eye level double oven, washer/dryer, integrated full size dishwasher and integrated 70/30 fridge and freezer unit. Other features include downlighters, composite kitchen sink and LED under unit lighting.
o Choice of carpet colour to landings and bedrooms
o Extra large loft storage area with loft hatch and lighting
The first floor is heated by radiators.
A well proportioned space, with airing cupboard, from which the bedrooms and family bathroom lead off.
A front aspect spectacularly spacious master bedroom with en-suite.
Key features include Ideal Standard sanitaryware, Ceraplan taps, Esteem Narva shower with rainfall head, alcove with feature light, electrical point for shaver/lit mirror, downlighters and heated chrome towel rail. Subject to build stage, there will also be a choice of Porcelain Peitre tiles
An excellent sized rear aspect bedroom.
Key features include Ideal Standard sanitaryware, Ceraplan taps, large 180cm shower bath with rainfall head, alcove with feature light, electrical point for shaver/lit mirror, downlighters and heated chrome towel rail. Subject to build stage, there will also be a choice of Porcelain Peitre tiles
A well sized rear aspect bedroom.
Front external image is not of advertised plot but same house type. Internal photography is of the show homes.
We are sales and marketing agents for new homes. Whilst we endeavour to ensure our sales details/adverts/on-line representations etc. Are both accurate and a true reflection of the development or individual property being marketed, certain information is provided from the outset to us by our developer client and we are reliant upon the same. Therefore, we recommend that if any items/points are of particular importance please raise these with the sales team so that confirmation or verification can be sought from our developer client. Please also be aware that floor plans are a visual guide to show where rooms are situated within the property and all measurements given are approximate. Some floor plans indicate location of where wardrobes, beds, furniture etc. May be placed and unless separately stated do not form part of the specification. Our developer client may amend the specification or make changes to the layouts during the build up until the property is complete. Whilst we aim to keep our marketing material as up to date as possible, we may not always be immediately aware of these changes if we have not been updated by our developer client.
For enquiries call 01732 363633